MICROLIFE HOUSING

Sozialer Wohnbau

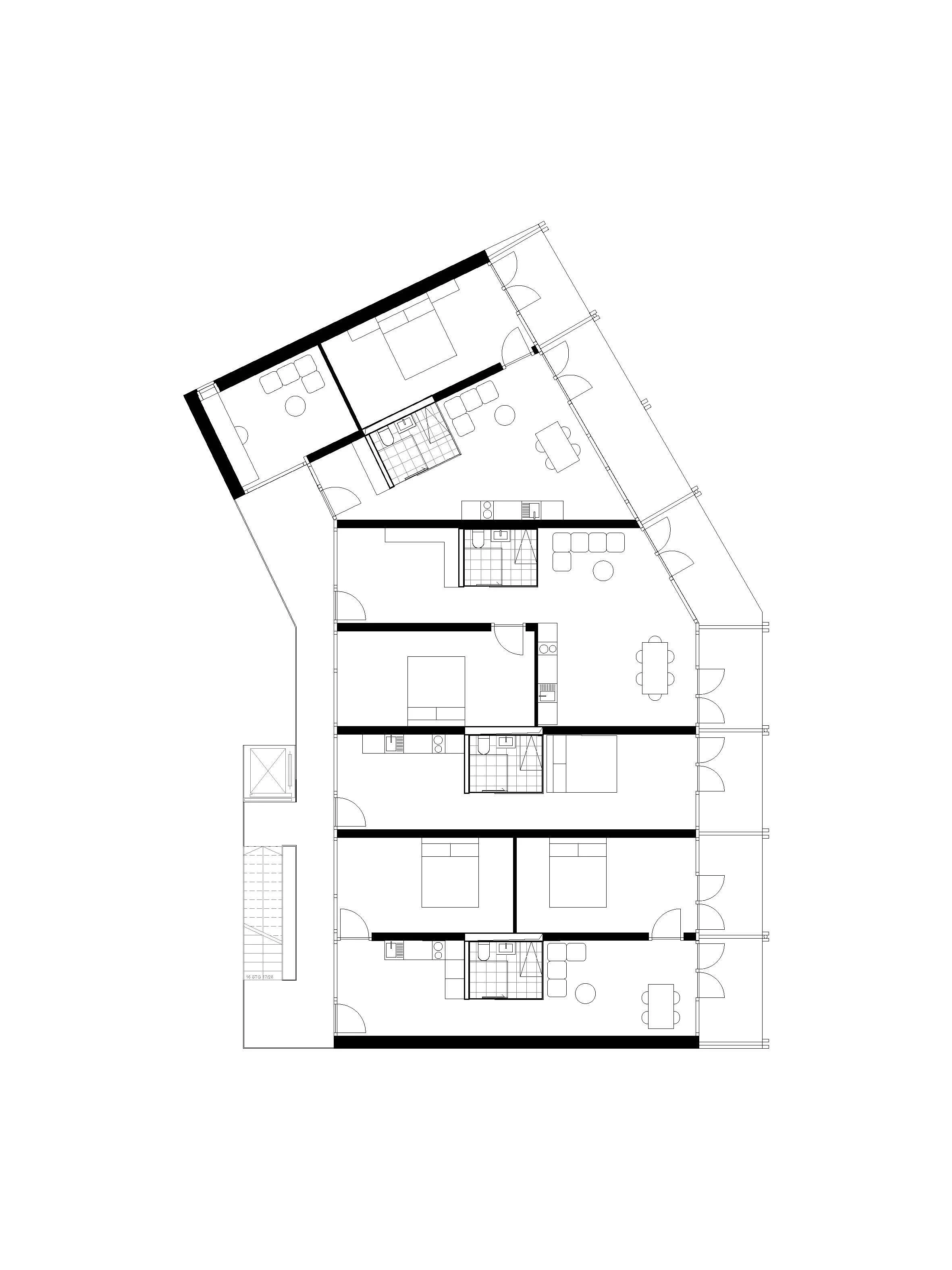
Ein Neubau, der zeitgemäßes Wohnen mit architektonischer Klarheit verbindet.

Das Projekt bietet ein differenziertes Angebot an Studio-, Zwei- und Vierzimmerwohnungen und schafft so eine lebendige, flexible Nachbarschaft.

Rötlich pigmentierter Sichtbeton trifft auf Aluminium und großzügige Glasflächen und formt eine reduzierte, zeitlose Architektursprache, die Präsenz und Ruhe zugleich vermittelt.

Ort: Wallisellen

Jahr: 2025

Architektur & Planung: LP 21 - 41 Martin Bruckeder, Carolina Jarcutchi

Geschossfläche: 2.142 m²

Status: Bewilligungsverfahren